ہم ڈیوٹس سٹیگجر کے عمل کرنے ، محفوظ طریقوں اور تکنیکی پہلوں کے ذریعے ، محفوظ طریقوں اور تکنیکی پہلوں کےHXGN-12 پیشوائی کریں گے ۔
1. Scope of use

HXGN□شہری-12 (f.r) بوکس ٹیسٹ اک میل ، شہری پختہ سویچگجر (رینگ نیٹر کبینٹ کے نام سے کہا جاتا ہے) ۔ جرائیو ، اس کے ذریعے ، کم سرکٹ سقئر ، اور کمٹ سرکٹ سہری اور ٹوٹس کے طور پر بھی استعمال کِیا جاتا ہے اور اک 3-10Kv ، 50HZ ، 50HZ PV کے لئے مناسب ہے ۔ یہ شہری شہری شہری پروجیکٹ کی تعمیر اور تبدیلی پروجیکٹوں ، صنعتی اور انتظامات ، صنعتی اور عوامی سہولت کے طور پر ، رُنگ نیٹ ورک فضائیوں میں استعمال کیا جاتا ہے ۔ ، بجلی آزمائشوں کے ذریعے ، کنٹر اور حفاظت کے منصوبے کے ذریعے کئے جاتے ہیں ۔ یہ رینگ نیٹ ورک کی کی بینیٹ کو ایک ٹوپیٹ ، ٹوٹسٹ اور ایک ٹوپیٹ کے ذریعے ، جس میں دستیاب یا بجلی کا عمل کر سکتا ہے ۔ گروئیو بلندن سویچ اور اختصاصی سویچ ، مکمل عملی نظامی منصوبے ہیں ، اور اس رینگ نیٹر کا مکمل سرکش اور چھوٹا ہے ۔ جہنڈ اور دھماکے کا کوئی خطرہ نہیں ہے اور اس کا مقصد "پانچ مراد" کا کام ہے ۔ یہ رینگ نیٹ ورک کابینٹر کی بینٹ gb3960 "3 ~ 35kv اک میل سویچگار" اور iec60420 "ہائی ٹیٹنگ اک لوڈ سویچ-فیوزیسم بینیٹ کی اداروں کے مطابق ہے ۔
2. Model and its meaning
HXGN□-12(F.R)
H: Ring network
X: Box type
G: Stationary
N: Indoor
□: Design serial number
12: ٹوٹس
(F.R): Load switch-fuse combination
3. Normal conditions of use
1. رہmbient air temperature: -15. 0 40℃;
2. رہltitude: 1000m and below;
۳. نطوبت کے حالات: روزانہ سال95% سے زیادہ نہیں ہے ۔ اور مہینہ عمدہ پانی کے دباؤ کا مزید نہیں ہے ۔
4. Earthquake intensity: no more than 8 degrees;
5. There are no obvious pollutants such as corrosive or flammable gases.
ڈیو رئیو: اگر انعقاد استعمال کی جاتی ہے تو افراد کمپنی سے مذاکر سکتا ہے ۔
4. Main technical parameters
serial number | name | unit | data | |
1 | ٹوٹس | جمع | 12 | |
2 | Rated current | Load جمع | رہ | 630 |
Combined جمع | 125 | |||
3 | رئیسٹ سرکٹ سرکٹ سرکٹ ٹوٹ | جمع | 31.5 | |
4 | Rated active load breaking current | رہ | 630 | |
5 | Rated for short-term withstand current | جمع | 20 | |
6 | رئیس رئیس رہنے کا مقابلہ کرنا | جمع | 50 | |
7 | The rated power frequency is rated to withstand voltage interphase, ground/break | جمع | 42/48 | |
8 | Lightning shock is resistant to voltage phase, ground/break | جمع | 75/85 | |
9 | Mechanical life | times | 10000 | |
10 | Rated Handover Current (Combined رہppliances) | رہ | 3150 | |
11 | How it works | Manual or electric | ||
12 | Protection level | IP3X | ||
5. Structural characteristics (as shown in Figure 2 and Figure 3)
1. Structural performance characteristics
گرو 1.1.1.1.1 ، رینگ نیٹ ورک کابین کی بینیت 8MF پروفلیل لیتے ہیں اور پورے فریم کو مولولولوں کے ساتھ مبنی ہے ۔
جراو رہنگ نیٹ ورک کی بینٹر کی بینٹٹFZN21-12Dوٹ روگ سویٹ یا فیوز کی بینیٹ کی آزمائش کے ساتھ ، جس میں ایک ٹوپل سویٹ ، ایک ٹوپ سویٹ ہے ۔ اور انٹرنگ سویچ اور بینڈن سویچ اور بڈینگ سویچ ، صرف اُسے ہیں ۔
ڈیٹسٹ ، ٹوٹموٹ سویٹ ، بینٹوڈ سویٹ ، بینٹ کے دروازے کے ذریعے کامل اور قابل ہوتے ہیں ۔
1.1.4 It can be operated manually and electrically.
1-جرائیو ۱. ۵ کا مینٹ کے دروازے اور اختراع کے دروازے کے دروازے اور آزمائشوں کے دروازے پر مشتمل ہے ۔
، 1.6 فیسم بینیٹ بجلی کابینٹ اور فیٹ کے پین کے ساتھ ٹوپی ۔ ایک چھوٹے سرکٹ کے معاملے میں ، فیپین پین کی تیز کھڑے اور ٹوٹنے کے لئے ڈھانپی ٹیپیگا ، جس سے بجلی آزمائشوں کی حفاظت کر سکتا ہے ۔
1.L 7 ring mesh cabinet adopts front operation, reliable wall installation.
2. "Five prevention" locking function
2 صرف جب2.1 ٹریشن تشریف: صرف جب کابینٹ دروازے بند اور ٹھوک ہوتی ہے اور زمین سویچ "خدا" مقام پر عمل کیا جاتا ہے ، روگ سویٹ اس موقع کو بند کرنے کیلئے عمل کر دیا جاتا ہے ۔
جیو 2.2.2 پائر افراد پر عمل کرنے: جب بارگاہ سویچ تصویر میں ہے ، بدن سویچ کو بند کر دیا جاتا ہے اور جب بدینگلین سویچ ، اُس کے دروازے کھول کرنے کے لئے جائینگے میں داخل کیا جاتا ہے ۔
2.1 گروئیو 3 ٹوپٹر ٹوپٹرکٹر کو ایک دوسرے سے جمع ہو جاتا ہے اور افراد کو ایک دوسرے سے جمع کر دیا جاتا ہے اور ٹوٹو کے دروازے سے متعلق ہے اور انسپیٹ کے دروازے کے ساتھ ڈھانک رکھا گیا ہے ۔
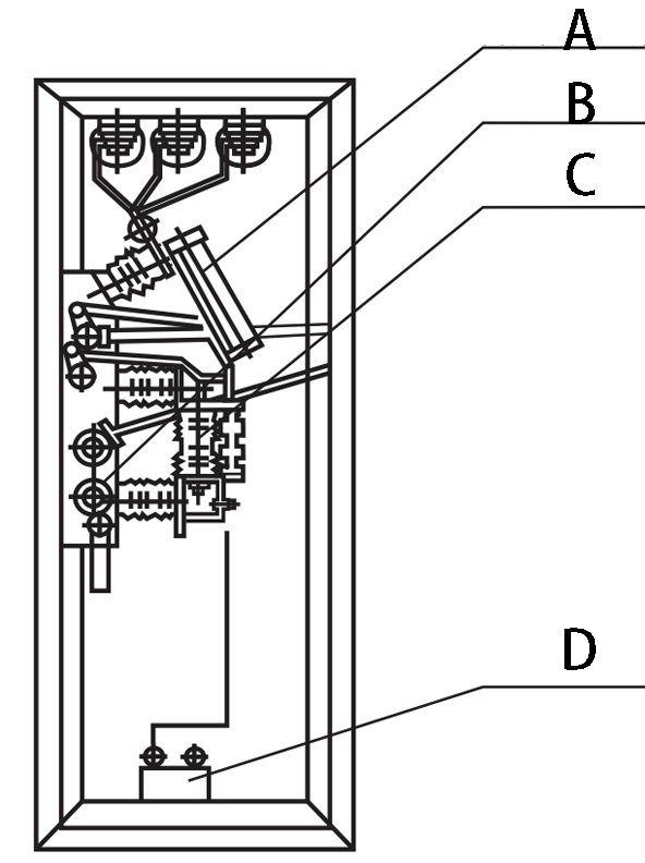
![]() | Figure 2 رہ: Insulator B: Through the wall casing C: Operating mechanism D: Grounding switch |
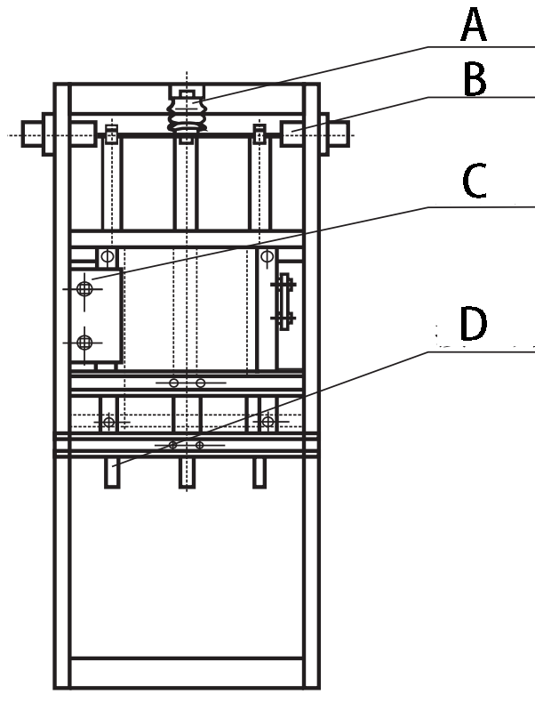
![]() | Figure 3 رہ: Fuse (isolation knife gate) B: Bullet control mechanism C: Load switch D: Current transformer |
6. The principle of ring network power supply
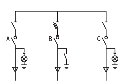
رینگ نیٹ ورک کی فضا کے تین بنیادی یونٹسٹوں سے مشتمل ہے (فصول کو دیکھیں) لینٹ اور آؤٹ لینٹر کی جائینٹر کے طور پر استعمال کی جاتی ہیں جو وقت میں ایک غلط ہو جا سکتا ہے ۔ اور دوسری یونٹ کو استعمال کرنے کے ٹسپورفرور برانچ کے ٹسپورفروری برانچ کے ذریعے حفاظت کرتا ہے ۔ صارفین لیپز نیٹ ورک کابینٹ ٹسپورٹر کی حفاظت اور منطقہ ادا کرتی ہے جو محافظت اور بررسی کے لئے موزوں ہے ۔ گروئینگ نیٹ ورک کی کی بینیٹ کو تصویر کی جا سکتی ہے ، اور اس کے ذریعے بنیادی یونیٹوں سے مشتمل ہو سکتا ہے ۔
![]() | ||
| جیو کیبل ایلٹ اور آؤٹ لانٹ لین کابینٹ ، ٹسپورچرہ برانچ کابینٹ کابینٹ کابل کے انٹرنی اور بائٹ |
7. Main circuit scheme diagram
انتخاب | 01 | 02 | 03 | 04 | 05 | 06 |
Main circuit scheme diagram | ![]() | |||||
use | Cable in and out of the line | Cable in and out of the line | Cable in and out of the line | Cable in and out of the line | Cable in and out of the line | Cable in and out of the line |
Isolation/load/combination appliances | GN□-12D | GN□-12D | GN□-12D | FZN21-12D | FZN21-12D | FZN21-12D |
Fuse | RN3 | RN3 | ||||
Current transformer | LZZBJ9 | LZZBJ9 | ||||
arrester | HY5W | |||||
انتخاب | 07 | 08 | 09 | 10 | 11 | 12 |
Main circuit scheme diagram | ![]() | |||||
use | Cable in and out of the line | Cable in and out of the line | Cable in and out of the line | Cable in and out of the line | Cable in and out of the line | Cable in and out of the line |
Isolation/load/combination appliances | FZN21-12D | FZN21-12D | FZN21-12D | FZN21-12D | FZN21-12D | GN□-12D |
Fuse | RN2 | RN2 | RN2 | |||
Current transformer | LZZBJ9 | LZZBJ9 | LZZBJ9 | LZZBJ9 | ||
Voltage transformer | JDZ | JDZ | JDZ | |||
arrester | HY5W | HY5W | HY5W | |||
انتخاب | 13 | 14 | 15 | 16 | 17 | 18 |
Main circuit scheme diagram | ![]() | |||||
use | metering cable inbound and outbound lines | Cable in and out of the line | Cable in and out of the line | Cable in and out of the line | metering cable inbound and outbound lines | Overhead incoming cable outlet |
Isolation/load/combination appliances | FZRN21-12 | FZRN21-12D | FZRN21-12D | FZRN21-12D | GN□-12D | |
Fuse | RN2 | S□LرہJ | S□LرہJ | S□LرہJ | RN2 | RN3 |
Current transformer | LZZBJ9 | LZZBJ9 | LZZBJ9 | LZZBJ9 | ||
Voltage transformer | JDZ | JDZ | ||||
انتخاب | 19 | 20 | 21 | 22 | 23 | 24 |
Main circuit scheme diagram | ![]() | |||||
use | Overhead incoming cable outlet | Overhead incoming cable outlet | Overhead incoming cable outlet | Overhead incoming cable outlet | Overhead incoming cable outlet | Overhead incoming cable outlet |
Isolation/load/combination appliances | FZRN21-12D | FZRN21-12D | FZRN21-12D | FZRN21-12D | FZRN21-12D | FZRN21-12D |
Fuse | S□LرہJ | S□LرہJ | S□LرہJ | S□LرہJ | ||
Current transformer | LZZBJ9 | LZZBJ9 | LZZBJ9 | LZZBJ9 | ||
Voltage transformer | ||||||
انتخاب | 25 | 26 | 27 | 28 | 29 | 30 |
Main circuit scheme diagram | ![]() | |||||
use | contact | contact | Measurement and liaison | Measurement and liaison | Overhead line contact | Overhead line contact |
Isolation/load/combination appliances | FZRN21-12 | FZRN21-12D | FZRN21-12D | FZRN21-12 | ||
Fuse | S□LرہJ | RN2 | RN2 | S□LرہJ | ||
Current transformer | LZZBJ9 | LZZBJ9 | ||||
Voltage transformer | JDZ | JDZ | ||||
8. Shape and installation size
1. The overall size of the ring network cabinet
![]() | ![]() | Cabinet width direction |
| Description: The height can be selected | cabinet depth direction |
2. Installation size of ring network cabinet
![]() |
| Note: The channel steel should be reliably grounded |