We will present the performance, safe operation methods, and technical parameters of ڈیوٹKYN61-40.5یٹ ٹوٹینگی
Model and meaning
K Y N 61 - 40.5 / □ - □
└─Rated Breaking Short Circuit Current (kرہ)
└───Rated current (رہ)
└─────── Rated جمعoltage (kجمع)
└────────── design serial number
└ ───────────── indoors
└────────────── Removal type
└─────────────── Metal armor
Use environmental conditions
The upper limit of ambient temperature is 40°C, and the average measured value within 24 hours does not exceed 35°C.
Lower limit -15°C:
رہltitude: no more than 1000 meters above sea level;
Relative humidity: daily average not more than 95%, monthly average not more than 90%;
Earthquake intensity: no more than 8 degrees;
Water vapor pressure: the daily average does not exceed 2.2kPa, and the monthly average does not exceed 90%.
Technical parameters
Main technical parameters of vacuum جمع
serial number | project | Dimensions | parameter |
1 | ٹوٹس | kجمع | 40.5 |
2 | Lianchang | رہ | 12501600 2000 |
3 | Rated frequency | Hz | 50 |
4 | Rated for short-term withstand current | kرہ | 20 25 31.5 |
5 | رئیس رئیس رہنے کا مقابلہ کرنا | kرہ | 50 63 80 |
6 | rated power frequency withstand voltage | kجمع | 95/1 min |
7 | Rated lightning shock withstand voltage | kجمع | 185 |
8 | Rated short circuit duration | S | 4 |
9 | Protection level | IP3X |
Main technical parameters of vacuum circuit breaker
serial number | project | Weaving position | parameter |
1 | ٹوٹس | kجمع | 40.5 |
2 | Rated frequency | Hz | 50 |
3 | rated power frequency withstand voltage | kجمع | 95/lmin |
4 | Rated lightning shock withstand voltage | kجمع | 185 |
5 | Rated current | رہ | 12501600 2000 |
6 | Rated for short-term withstand current | kرہ | 20 25 31.5 |
7 | رئیسٹ سرکٹ سرکٹ سرکٹ ٹوٹ | جمع | 20 25 31.5 |
8 | رئیس رئیس رہنے کا مقابلہ کرنا | kرہ | 50 63 80 |
9 | Rated short circuit duration | ms | 4 |
10 | Opening time | ms | 30 S 1 W 60 |
11 | Hehe time | ms | 50 & t W 】00 |
12 | 88 The number of times the current is interrupted in a fixed short circuit | times | 20 |
13 | Mechanical life | times | 10000 |
The main technical parameters of spring operation machinery
name | unit | numeric value | |
نگاہ کے ذریعہ | Split coil | جمع | DC220/110 رہC220/110 |
Closing coils | |||
Rated operating current | Split coil | رہ | O.96(22Oجمع)1.O5I11Oجمع) |
Closing coils | |||
Energy storage motor power | W | 230 | |
Energy storage motor rated voltage | جمع | DC220/110 رہC220/110 | |
Energy storage time | S | w 12 |
Structural characteristics of جمع
سٹیگگر کےGB3906-1991 اور یک ۲98 معیاروں کے ذریعے ڈھانپیڈ کے مطابق ڈھانک دیا گیا ہے ۔ پورا پورا دو حصوں سے تشکیل ہوتی ہے: کابینٹ اور ٹکٹل حصہ کابینتیٹ ڈھانٹ پر ٹکڑے اور اکٹھا ہے ۔ سٹیگجر کا اندرونی حصہ ایک سرکٹ بریککرٹ بریکر کمر ، ایک مقدار ، ایک مقدار بزور کمر ، ایک کابل کمر اور ایک رئیل ٹریٹر میں تقسیم ہے ۔ رئیسٹ کی حفاظت سطح آئیپ3کس پہنچتی ہے ، ہر کمپ کے درمیان حفاظت سطح Ip2x ہے اور تمام اصول کے ٹکڑے حصے ہیں ۔ اہم سرکٹ نظام کے ہر گرچپ کے نظام میں ایک آزاد ٹوپ کے ذریعے کا ایک آزاد ہے ۔
1. Enclosure and partition
اسٹیلگجرر کے شیل اور تقسیم کے ذریعے کے بعد سرد لیگا ، اسٹیل کے ذریعے سرد لپیٹوں کے ساتھ جمع کر دیا جاتا ہے ۔ لہٰذا ، جمعیٹ سویچگجرر ، عظیم کے اصول کا ایک اصطلاح کو یقین کر سکتا ہے ۔ اسٹیچفجرر کو ایک سرکٹ بریکر کمر ، ایک مقدار ، ایک بنیادی بزور کمر ، ایک کابل کمر اور ایک رییلی ایلٹر کمر ، اور ہر حصہ کو ایک ٹریٹ پیچیدہ سے جدا ہوتی ہے ۔
2. Handcart
ہانڈ ڈھڑوں ، ٹوٹسٹفرورچہ ، میٹر ٹانڈ ، میٹر ، میٹر ، ڈھڑڑوں ، ڈھڑوں ، اُس کے مقصد کے مطابق ، اُس کے مطابق ،
ہندی کا ایک ٹیسٹ/نفری حالت اور کابینٹ میں کام کرنے کی جگہ ہے ۔ اور ہر مقام ایک صندی آزمائش کے ذریعے ڈھانڈی کی تصویر ہے ۔
3. Circuit breaker compartment
سرکٹ بریککرٹ بریککر کاٹرن کے اندر سرکٹ بریککرٹن کے اندر جگہ دی جاتی ہے ۔ جب سرکٹ برکر ٹیسٹنوں کے کام کے درمیان جارہا لیتا ہے ، اُسے ٹکڑے ٹکڑے یا بند کئے جاتے ہیں ، جو اس کا یقین رکھتا ہے کہ استکُن نہیں ہے ۔
اُس کے جسم کو چھوٹے. ہتھکنڈی کے دروازے بند سے بند کر دیا جا سکتا ہے ، اور دستہ گاڑی کے ذریعے کے ذریعے کھڑی میں دیکھا جا سکتا ہے ۔
4. Busbar chamber
اہم بس ایک سویچگجر سے دوسری طرف لے جاتی ہے ۔ تمام بزبروں کے ذریعے مکمل اُس کے ذریعے جاتے ہیں ۔
5. Cable compartment
PT, ground switch, surge arrester and multiple cables can be installed in the cable room.
6. Relay room
رئیل کمر ، تحفظ ، ڈھانٹر ، حفاظت ، میٹر ، ڈیٹر ، ڈیٹر ، ڈیٹر ، حفاظت ، حفاظت ، جائزہ ، جائزہ ۔
7. Interlock device
The جمع has a reliable interlock device to ensure the safety of operators and equipment:
![]() | ![]() | ![]() |
| Promote interlocking installation | KYN61-40.5(Z) رہrmored Handcart Cabinet | Grounding switch |
جب بدینگلین سویچ افتتاح مقام میں ہے ، ٹیسٹ/مخلوق سے کام کرنے کے موقع پر چلا جا سکتا ہے ۔ جس کے ذریعے غلطی میں داخل ہونے سے روکتے ہیں ۔
جب گاڑی کو مکمل طور پر کھینٹ سے باہر نکال دیا جاتا ہے یا جب تک دستہ گاڑی کے ٹیسٹ میں ٹیسٹ/انسٹنی مقام میں ڈھانپیٹ/ٹوٹ میں رہ جاتی ہے ۔ جب تک گاڑی کارگری حالت میں ہے تو بہنڈی سویچ کو بند نہیں کِیا جاتا ۔ یہ بہنڈی سویٹ کی زندگی غلطی اتصال کو روکتا ہے اور بہت ہی دستھڑے گاڑیوں کو کام کرنے کی جگہ پر چلنے سے روکتے ہیں ۔
سرکٹ بریککر کے ذریعے سرکٹ بریککر صرف سرکٹ بریکر کے ذریعے کام کر سکتا ہے جب وہ ٹیسٹ/تنگ کر سکتا ہے ۔ جس کی زندگی بارگاہ میں رہنے اور سرکٹ بٹنے سے روکتے ہیں ۔ بجلی کے ایک بینیٹ کے مابیٹ کے درمیان قائم کر سکتے ہیں ۔
Grounding device
In the cable room, there is a separate 6x50mm2 grounding busbar, which can run through the adjacent cabinets and have good contact with the cabinets.
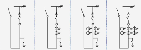
Main wiring scheme
اسٹیگگر کے ذریعے اسکیم کے اسکیم کے لئے 27 استعمالی اسکیم ہیں جو کبیل نٹری اور باہر لینٹ لینٹ ، افرادی اور باہر لینٹ لینٹ ، اکٹس اور بائٹ لینٹس ، حفاظت
انتخاب | 01 | 02 | 03 | 04 | |
Main wiring diagram | ![]() | ||||
Main electrical equipment | Rated current | 125,016,002,000 | |||
New circuit driver ZN85-40.5 | 1 | 1 | 1 | 1 | |
Current transformer LDBJ8(9)-35 | 2 | ||||
Grounding switch IN22-40.5/31.5 | 1 | 1 | 1 | 1 | |
use | Overhead out | Overhead out | Overhead out | Overhead out | |
انتخاب | 05 | 06 | 07 | 08 | |
Main wiring diagram | ![]() | ||||
Main electrical equipment | Rated current | 125,016,002,000 | |||
New circuit driver ZN85-40.5 | 1 | 1 | 1 | 1 | |
Current transformer LDBJ8(9)-35 | 2 | 3 | |||
Grounding switch IN22-40.5/31.5 | 1 | 1 | 1 | 1 | |
use | cable outlet | cable outlet | cable outlet | cable outlet | |
انتخاب | 09 | 10 | 11 | 12 | |
Main wiring diagram | ![]() | ||||
Main electrical equipment | Rated current | 125,016,002,000 | |||
New circuit driver ZN85-40.5 | 1 | 1 | 1 | 1 | |
Current transformer LDBJ8(9)-35 | 1 | 2 | 3 | ||
use | Left (right) contact | Left (right) contact | Left (right) contact | Left (right) contact | |
انتخاب | 13 | 14 | 15 | 16 | |
Main wiring diagram | ![]() | ||||
Main electrical equipment | Rated current | 125,016,002,000 | |||
New circuit driver ZN85-40.5 | |||||
Current transformer LDBJ8(9)-35 | 1 | 2 | 3 | ||
use | contact | contact | contact | contact | |
انتخاب | 17 | 18 | 19 | 20 | |
Main wiring diagram | ![]() | ||||
Main electrical equipment | Rated current | 125,016,002,000 | |||
New circuit driver ZN85-40.5 | 1 | 1 | 1 | 1 | |
Current transformer LDBJ8(9)-35 | 1 | 2 | 3 | ||
use | Cable in | Cable in | Cable in | Cable in | |
انتخاب | 21 | 22 | 23 | 24 | |
Main wiring diagram | ![]() | ||||
Main electrical equipment | Rated current | 125,016,002,000 | |||
New circuit driver ZN85-40.5 | 1 | 1 | 1 | 1 | |
Current transformer LDBJ8(9)-35 | 1 | 2 | 3 | ||
use | Overhead in | Overhead in | Overhead in | Overhead in | |
انتخاب | 25 | 26 | 27 | 28 | |
Main wiring diagram | ![]() | ||||
Main electrical equipment | Rated current | 125,016,002,000 | |||
جمعoltage transformer LDX9-35 | |||||
Fuse XPNP-35 | 2 | 3 | 2 | ||
Surge arrester YH5WS-51/134Q | 3 | ||||
| ٹانڈ SCB9-50-35/0.4 | 1 | ||||
use | جمعoltage transformer | جمعoltage transformer | Station usage changed | ||
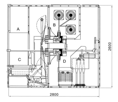
Dimensions and schematic diagram of جمع structure
![]() | ![]() |
| Dimensions (WxDxH): 1400x2800x2600 | Schematic diagram of the structure of the جمع رہ relay instrument room B bus room C circuit breaker room D cable |
Switch cabinet installation
1. Height of electrical room: ≥4500mm:
2. Distance from the back of the cabinet to the wall: ≥1500mm;
3. Flatness of foundation frame: ≤1mm/m?;
4. The part of the foundation embedded channel steel above the ground shall not exceed 3mm;
5. It can be fixed on the foundation by bolting or welding:
6. The weight of the جمع is about 1800Kg:
7. Width of the جمع operation corridor (single row): ≥3000mm, double row (face to face) ≥ 4000mm.
ٹوٹ consistency
the main scheme number of the secondary line, the single bus system diagram, the arrangement diagram and the layout diagram;
Secondary circuit electrical schematic diagram and terminal arrangement diagram:
the model, specification and quantity of electrical components of the جمع;
Specifications and materials of main busbars and branch busbars:
Name and quantity of spare parts and spare parts:
Special requirements are agreed with the manufacturer.
ٹیکنالوجی کی ٹیکنالوجی کے مستدامی بہتری کی وجہ سے ، تمام اعداد فکٹری کے آخری تکنیکیی دیپار کی تصدیق کی جاتی ہے اور اس سے پہلے اشارہ کرنی کے بغیر تبدیلیاں ہو گی ۔
Ordering instructions
The user should provide the following technical information when ordering:
اسکیم ڈیگرم ، مقصد اور ایک وائیر نظام ڈیگرم: رئیس: رئیس: رئیس: رئیس: رئیس: رئیس: رئیسٹ سرکٹ سرکٹ رونٹ: ڈیٹر ڈیارگرم ڈیٹسٹسٹرپٹرپٹس ڈیٹسٹرڈارکٹسٹس ڈارکٹسٹسٹسٹسٹس ڈروں ڈرپٹرپٹس ڈروں ڈروں ڈگرم ڈرپٹرڈرڈرڈ
Indicate the specifications of the inlet and outlet cables.
Requirements for control, measurement and protection functions of جمع and other requirements for latching and automatic devices.
اسٹیجغرور میں بنیاد بجلی اصطلاحات اور مقدار جیسے سیچگجرر ، یا حاضر کی کبینٹ کو ایک بوزبر برج کے ذریعے سے جمع ہونا چاہیے اور شراب پل کی اتحادی کی وجہ سے بوسبر پل کی ٹوپیٹ اور زمین کی بلندی سے بوزبر پر پل کی ٹوٹا ۔
When جمع is used in special environments, it should be detailed at the time of ordering.
Other special requirements.
Schematic diagram of the installation of جمع
