We will present the performance, safe operation methods, and technical parameters of ڈیوٹXGN2-12یٹ ٹوٹینگی
Scope of application
جہن پُرٹ-12 بکس ٹیسپی ذخیر کے ذریعے کے لئے مناسب ہے ۔ ڈیو 10kv نیٹ ورک کو ایک بریک لوڈ اور کمٹ سرکٹ سرکٹ سرکٹ ، اس رینگ نیٹ ورک کی بینٹر کے طور پر ، یہ رنگ نیٹ کی کی بینٹ رہنے کے لیے ، جئیو اور زمین سویچ اور اختراع سویچ اور اختصاصی سویچ ، مکمل عمل کے ذریعے ہیں ۔ اس رینگ نیٹ ورک کی کیبینٹ کو مکمل عملیاتی ہے ، چھوٹے ، چھوٹے ، کوئی آگ اور دھماکے خطرہ ہے اور اس کا مقصد "پانچ روکنے" کا کام ہے ۔
Use environmental conditions
The upper limit of ambient temperature is 40°C, and the lower limit is -25°°C;
The altitude does not exceed 1000m;
دریا کے نسب نطوبت کا روزانہ95% سے زیادہ نہیں ہے ، اور ماہن ہے ، پانی حصے کا روزانہ صفرہ 2.2x10-3MPرہ سے بڑھتا ہے ۔ اور مینہ والی ماہن1.8 × 10-3MPرہ سے زیادہ نہیں ہے ۔
The surrounding air is not corroded or obviously polluted by combustible gases and water vapors;
No regular violent vibrations.
Model and meaning
XGN□-□-□-□/□-□
└──Rated Thermal Stable Current (kرہ)
└──Rated current (رہ)
└──Operation method (J spring operation D electromagnetic operation.)
└── One plan number
└──ٹوٹس
└──Design serial number
└──Indoors
└──Fixed
└──Box type
Use environmental conditions
◆Upper limit of ambient temperature 40°C lower limit -25°C (indoor):
◆رہllocation 1000m;
جدول (جب پانی کی اتحادی1000 میٹر سے زیادہ ہے تو اسے "ہائی ٹوٹج سویچگار کے شرکت کے ذریعے کے لئے تکنیکی رہنمائی کے مطابق عمل کی جائے گی ۔
◆The daily average of relative humidity is not greater than 95%, and the monthly average is not greater than 90%:
the intensity of ground tremors does not exceed 8 degrees;
◆ No fire, explosion hazard, serious pollution, chemical corrosion and violent perturbation place.
The main technical parameters of the جمع
serial number | project | unit | data |
1 | ٹوٹس | kV | 3、6、10 |
2 | Maximum operating voltage | kV | 3.5、8.9、11.5 |
3 | Rated current | رہ | May-00 |
4 | Rated breaking current | kرہ | 16.20、31.5、40 |
5 | Rated Short Circuit Engagement (Rated Short Circuit Off Current) | kرہ | 40、50、80.100 |
6 | Rated short-circuit thermal stabilization current | kرہ | 16.20、31.5、40 |
7 | Rated for thermally stable current | kرہ | 40、50、80、100 |
8 | Rated thermal settling time | s | 4 |
9 | Protection level | IP | IP2X |
10 | Busbar system | - | Single busbar, next to the single busbar |
11 | How it works | - | Electromagnetic type, spring energy storage type |
12 | Dimensions (width, × depth, × height). | mm | 1100×1200×2650 (below 1000رہ). |
13 | weight | kg | 1000 |
Structure and anti-error device
structure
کیبینٹ ایک مینڈی ڈھانک ہے ، کابینٹ کو کو کونچہ اسٹیل کے ذریعے جاتی ہے اور کابینٹ کو ایک سرکٹ بریکر میں تقسیم ہوتی ہے ، ایک بزور کمر ، اور ایک رییلی کمر اور کبینٹ کے اہم حصے کے ذریعے کے ذریعے دیکھنے کی کوشش کی جاتی ہے ۔ اسٹیگگر کی تکنیکییی عملیات کو بہتر بنانے کے لئے ، اہم اصطلاحات (جیے سے سرکٹ بریککر ، روٹرین سویچ وجہ سے) تبدیل کئے گئے ہیں ۔
کی بینیٹ کے لیوٹ کے مطابق ، رئی کمر ایک رئیل کے ساتھ بنائی گئی ہے ، دروازے سیگن ریلی ، ڈیٹر ، سیگن روشنی ، تراشی ، سیگن روشنی ، نقل سویٹسٹسٹسٹسٹ ، اُسے بزبر کا کمر ہے ، نیچے حصے کو کابل کیل کمر ہے ، استفاد آسانی سے وائبستہ کر سکتا ہے ۔ جِنوں کے ذریعے سرکٹ بریکر کمر ہے ، جو سبٹسچ غیرور کی محافظت کرنے کی کوشش کرتی ہے ۔ کابینٹ کے اندرونی عموماً تصویر 1 ، تصویر 2 اور ٹوٹ Manual میں بیان کِیا گیا ہے ۔
Error prevention device
"پانچ مراد" کا کام ہے: سرکٹ بریکٹریز کے غلطے اور غلطی اتصال سے روکنے ، رہنے اور غلطی سویچ کو روکنا ، لیجہ اور زمین سویٹ روکنے سے روکنا ۔ جب زمین کو کھول اور بند ہو جائے گی اور بند کر دیا جاتا ہے ، جب زمین کھول کھول اور بند کر دیا جاتا ہے ۔
یہ سویچگجرر کو لاگوری مکانیکی لٹک طریقے سے تعلق رکھتا ہے اور غلطی اصطلاحات ، ڈیس ، ڈیس ، پینل ، لیک پلٹ ، ہنڈ اور اتصال ٹوڈوں سے شامل ہے ۔ جنہیں اعتماد عملیات ، مکمل عملیات ، سادہ عمارت ، سادہ عمارت اور آسان تبدیلی کی ذمہ ہے ۔ پانچ حفاظت:
(1) Control switches (KW switches) with red and green plates are used in circuit breaker schemes to prevent misdisconnection and misclosing of circuit breakers;
صرف (2) سرکٹ بریککر واقعی جمع ہونے کے بعد ، چھوٹے ہیمنڈ کو "عمل" مقام سے باہر نکالا جا سکتا ہے ۔ ٹوٹسٹ اور قریبی جدا جدا جدا ہوتی ہے ۔ لٹچنگ اور لٹک کی خلافتری کا یقین رکھنے کو دودھی غلطی روکنے کا تعلق ہے ، یعنی جب چھوٹے ہیمنڈ "انگلیسی اور لک" مقام میں ہے ۔ یہ صرف صرف اوپر اور نیچے اختصاصی سوئٹوں کو تقسیم کر سکتی ہے اور سرکٹ بریککر کو بند نہیں کر سکتا ۔
جیو (3) جب سرکٹ بریکر اور بالای اور نیچے اختصاصی سوئز کے بند حال میں ہیں اور چھوٹے حصے میں ہیں اور چھوٹے ہیمنڈ "جوک" حالت میں ہے ۔ اُس کے بعد اور پچھلے دروازوں کے دروازے کو کھول نہیں دیا جا سکتا ۔
جےو (4) جب افرادی اور نیچے اختصاصی سوئچ کو کھول دیا جاتا ہے تو بہنچے ، ڈیو اور چھوٹے ہیمنڈ کو "برکز" مقام سے "بروٹس" جگہ سے لیتا نہیں کی جاسکتا ہے ، جو زنی کو بٹنے سے روک سکتا ہے ۔
جراو (5) اگر بہنڈی سویچ کھول نہ ہو تو اُن کے اوپر اور نیچے اختصاص سوئز کو بند نہیں کئے جاتے رہنے سے روک سکتا ہے ۔
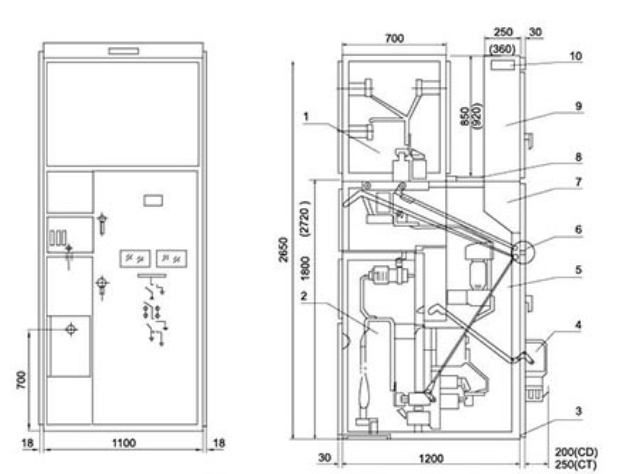
XGN□ - 12/07D outline (Fig. 1)

1. Busbar room 2. Cable room 3. Grounding bus 4. Electromagnetic (spring) mechanism 5. New circuit device room
6. Manual operation and joint sales mechanism 7. Operation chamber 8. Pressure release channel 9. Instrument room 10. Small bus terminal
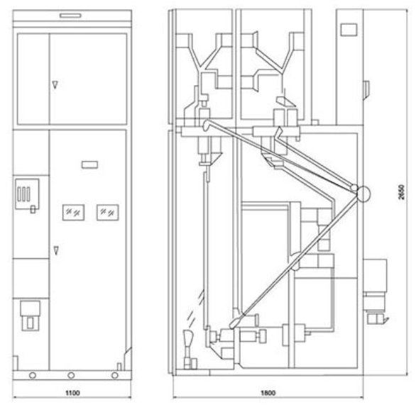
XGN-12 (bypass cable outlet) outline (Fig. 2)

Dimensions installation drawing

